Nieuwbouwwoning te Munsterbilzen

Nieuwbouwwoning te Munsterbilzen

VERKOCHT

Nieuwbouwproject in de Oude Tramweg te Munsterbilzen

Deze knappe nieuwbouwwoning in een hedendaagse bouwstijl voorziet AVL in de Oude Tramweg te Munsterbilzen, op een halfopen perceel van 540m2 groot.

Dankzij de rustige ligging met een vlotte bereikbaarheid, kunnen we hier spreken van een gunstige locatie.

 

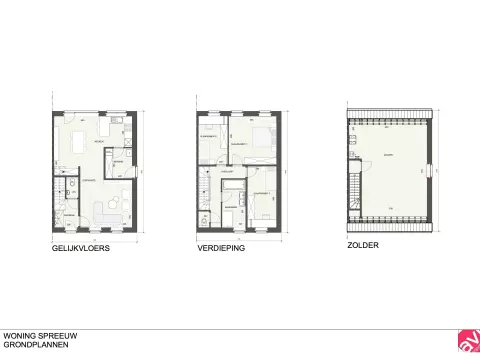
De voorgestelde woning (140m2+53m2 zolder) kan nog aangepast worden naar uw eigen smaak en wensen. In het huidige ontwerp zijn op de verdieping 3 slaapkamers voorzien en een badkamer met ligbad, douche en dubbele lavabo. De vaste zoldertrap biedt de mogelijkheid om nog extra kamers of een hobbyruimte op de zolderverdieping te voorzien.

 

Voor de energiezuinigheid van de woning is er een ultramodern pakket met warmtepomp, vloerverwarming, ventilatie D+ en zonnepanelen voorzien.

Hierdoor kunnen we een A+ energielabel (max. E0) garanderen, wat zich uiteraard vertaalt in een uiterst energiezuinige woning.

 

Wenst u graag de binnenafwerking zelf te voorzien, dan bestaat er ook de mogelijkheid om deze woning CASCO+ (winddicht met technieken, pleisterwerken en chape) aan te kopen.

 

Dit project realiseren we in samenwerking met Matisimmo, vastgoed op maat.

Bel bouwadviseur Michiel 011/450 280  voor een vrijblijvende afspraak.

Sleutel op de deur afwerking

  • Ruwbouw winddicht
  • Sanitaire leidingen (inclusief hergebruik van regenwater).
  • Elektriciteit
  • Verwarming via warmtepomp met vloerverwarming
  • Pleisterwerken
  • Isolatiewerken en chape
  • EPB berekening
  • Ventilatiesysteem D+
    • Kostprijs architect en veiligheidscoördinatie inclusief
    • Zonnepanelen
    • Afgewerkte keuken
    • Sanitaire toestelen
    • Tegelvloeren op het gelijkvloers en in de badkamer
    • Binnendeuren in grondlaag
    • Trap in hout
    • Voegwerken

    Deel dit project

    of bekijk alle projecten

    Woningen

    • Nieuwbouwwoning te Munsterbilzen
      VERKOCHT
      EPB: A+

      Nieuwbouwwoning te Munsterbilzen

      Eigentijdse woning
      140m2
      53m2
      3
      3
    Maak een afspraak