back to overview

Nieuwbouwwoning Tessenderlo

(1 woning beschikbaar)
Bekijk project
Nieuwbouwwoning Tessenderlo main image
Nieuwbouwwoning Tessenderlo extra image 1
Nieuwbouwwoning Tessenderlo extra image 2
EPB: A+

Galerij

Sleutel-op-de-deur afwerking

  • Ruwbouw/winddicht
  • Sanitaire leidingen
  • Elektriciteit
  • Verwarming
  • Pleisterwerken
  • Chapewerken
  • Voegwerken
  • Ventilatiesysteem
  • EPB-berekening
  • Vloer- en wandtegels
  • Binnenschrijnwerk
  • Sanitaire toestellen
  • Keuken (uitsluitend bij luxe-uitvoering)
  • Trap

Deel deze woning

Sleutel op de deur

€495.000

excl. alle kosten op grond en constructie

€635.000

incl. alle kosten op grond en constructie

Interesse in deze woning?

De weergave van deze woning is louter ter inspiratie en kan op basis van deze uitwerking gekocht worden. Contacteer ons voor gedetailleerde informatie en/of gratis advies.

Details

Type:

Klassieke woning

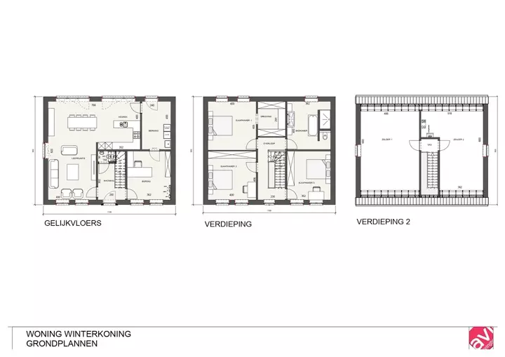
Oppervlakte woning:

198m2

Oppervlakte zolder:

73m2

Slaapkamers:

3

Bouwlagen:

3
Maak een afspraak